박건우
(Keon-Woo Park)
†iD
Copyright © The Korean Institute of Electrical Engineers
Key words
Low Voltage Direct Current Distribution System, Renewable Energy, Efficiency Analysis, IPMVP, EMTP, ATPDraw
1. 서 론
현재의 전력 시스템은 에너지 효율성, 전력 품질, 신재생에너지의 확대와 적용 등 다양한 요구에 직면해 있으며, 특히 고효율·고신뢰성의 전력공급 시스템에
대한 관심이 높아지고 있다. 기존의 교류(AC) 기반 배전 시스템은 오랜 기간 동안 최적화되어 사용되고 있지만, 다단계 변환 구조에 따른 에너지 손실,
고조파 발생, 신재생에너지 연계에 따른 계통의 불안정 등 다양한 한계점을 내포하고 있다.
반면, 저압 직류배전(Low Voltage Direct Current, LVDC) 시스템은 전력 변환 단계 감소, 고효율 전력 전송, 신재생에너지
및 에너지저장시스템(Energy Storage System, ESS)와의 높은 연계성 등 다양한 면에서 장점을 제공하고 있다. 특히 태양광, 에너지저장시스템,
LED 조명, 서버 등 많은 부하들이 본질적으로 직류의 특성을 가지므로, 직류배전 시스템은 이러한 다양한 에너지원을 보다 효율적으로 활용할 수 있는
대안으로 주목받고 있다.
국내외에서도 데이터센터, 통신사, 빌딩, 스마트홈 등 다양한 응용 분야에서 직류배전 기반의 실증 프로젝트가 진행되고 있으나, 정량적인 효율 분석 및
표준화된 평가 방법은 미흡한 실정이다. 특히 실제 구축된 직류배전 시스템을 기반으로 하는 효율 분석 연구는 매우 제한적이며, 시뮬레이션과 실증 결과
간의 상관관계를 검증한 사례도 드물다.
본 연구는 신재생에너지와 에너지저장시스템이 연계된 저압 직류배전시스템을 실제 구현하고, 시스템 내 주요 구성요소(PV, BIPV, ESS, DC 컨버터
등)를 기반으로 EMTP/ATPDraw 및 MATLAB을 이용하여 모델링하여 실증 및 시뮬레이션 데이터를 기반으로 시스템의 에너지 효율을 정량적으로
분석하고, 국제 성과 검증 프로토콜(International Performance Measurement and Verification Protocol,
IPMVP)을 적용하여 실측 데이터를 활용한 객관적 효율 평가 방법론을 제안하였다.
또한, AC 시스템 대비 DC 시스템의 에너지 절감 효과를 실제 데이터 기반으로 비교·분석함으로써, 향후 스마트빌딩, 마이크로그리드, 데이터센터 등에
적용 가능한 기반 데이터를 제공하는 데 그 의의가 있다[1], [2], [3].
또한, 연구는 실증 기반 LVDC 시스템의 효율 분석 및 모델링 기법을 제시함으로써, 향후 데이터센터 및 직류마이크로그리드 등 직류 기반 인프라 확산에
필요한 에너지 절감 근거, 설계 데이터를 제공한다는 점에서 산업적 활용이 가능하다.
2. 시스템 구성 및 하드웨어 실증
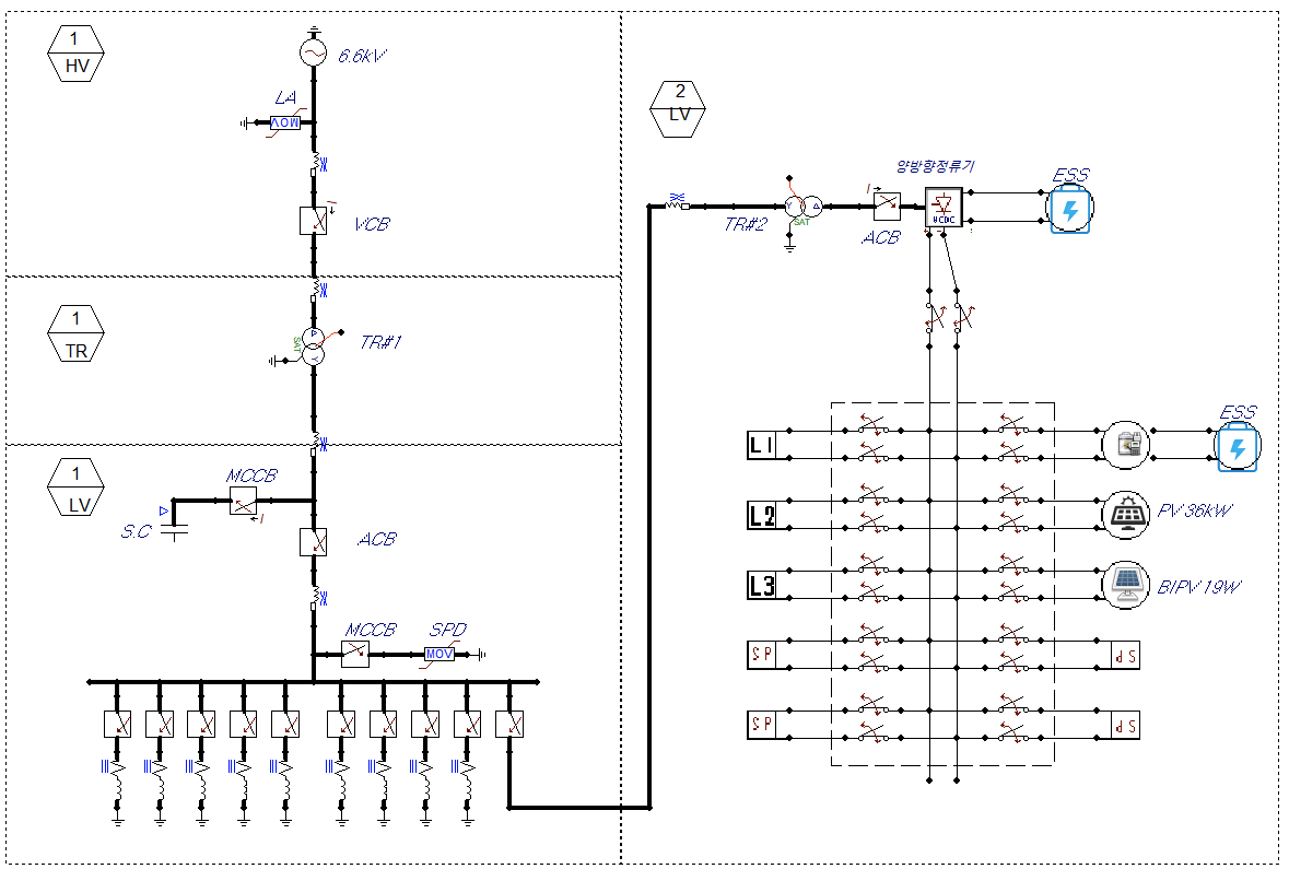
그림 1은 본 논문을 위해 구성된 380[VDC]의 직류배전 시스템의 단선도이다. 발전사에서 공급되는 교류를 직류로 변환하기 위해 AC/DC 양방향 컨버터와 DC/DC 컨버터, 그리고 태양광 기반
신재생에너지 시스템과 에너지저장시스템을 포함하여 직류배전 시스템을 구성하였다.
AC/DC 양방향 컨버터는 빌딩의 직류배전 시스템에서 전력을 변환하고 공급하는 핵심 장치이며, 전력변환으로 인한 손실을 최소화함으로써 에너지 효율을
높이고 양질의 전력을 제공할 수 있다. 60[kW]급 전력변환장치와 40[kW]급 에너지저장시스템의 충·방전 시스템은 고효율 전력변환 기술을 기반으로
하여 직류배전 사이트에 적용되어 구성되어 있다[1].
그림 1. 저압직류배전 시스템 결선도
Fig. 1. Wiring diagram of the LVDC
Roof-Top 태양광 발전시스템은 36[kW]급의 대용량 발전시스템으로써 250[W]급 태양광 모듈 144장으로 이루어져 있으며, 멀티스트링(Multi-String)구조를
선택하였다. 1개의 스트링은 18개의 모듈로 구성되며, 각 4.5[kW]급 스트링은 스트링 컨버터에 연결된다. 8개의 스트링 컨버터 출력은 병렬로
합쳐져 36[kW]급 컨버터에 연계되어 전력을 생산하도록 설계되었다[1].
그림 2는 직류배전 연계형 Roof-Top 태양광시스템 구성도이며, 건물 옥상에 고정된 태양광 모듈은 직류전력을 공급하기 위해 개발된 DC/DC 컨버터를
거쳐 각 층의 부하로 전달되어 사용된다.
BIPV는 비투과형 박막 태양전지 모듈을 사용하였으며, Glass 층 사이에 공기층을 더해 단열 효과를 향상시킨 제품을 사용하였으며, 전기적 유지보수성을
개선하기 위해 Pencil Type 정션 박스를 적용하였다. 이는 모듈 측면에 설치되는 방식으로 시야각을 확보할 수 있으며 모듈 간 결선 상태 점검이
용이하다. 결선 이상 시 모듈 전체를 분리할 필요 없이 코킹부만 해체하여 유지보수가 가능하도록 구성하였다.
MLPM(Module Level Power Management)을 활용하여 각기 다른 특성으로 구성된 BIPV 모듈의 에너지를 단순히 중앙집중식 PCS(Power
Conditioning System)로 집계하는 것이 아니라, 개별 모듈별로 생산 효율을 최적화하였다. 이를 통해 설치환경의 제약을 극복하고 BIPV
발전의 시간당 전력 생산량을 최대 5~20[%] 향상시켰다.
그림 3은 직류연계형 BIPV 시스템의 개념도이며 모듈형 컨버터를 사용하여 직류배전에 직접 연계함으로써 교류연계 대비 전력효율을 크게 높였다. 또한, 부분
그림자에 강한 모듈형 발전 방식을 채택함으로써, 건물 구조물 및 주변 지형지물에 취약한 BIPV의 단점을 극복하였다.
그림 2. 직류배전 연계 Roof-Top 태양광시스템
Fig. 2. PV system integrated with LVDC
그림 3. 직류배전 연계 BIPV 시스템 개념도
Fig. 3. BIPV system integrated with LVDC
에너지저장시스템은 13Cell 모듈 6개를 직렬로 연결해 Middle Battery Pack을 제작하고, 이러한 Middle Pack 3세트를 병렬로
구성하여 40[kWh]급(Max 320[VDC]) 에너지저장시스템을 완성하였으며, Middle Pack 내부에는 각각 2개의 Fan을 설치하여 온도가 상승하면 자동으로 감지 후 작동해 효율적인
냉각이 가능하도록 구성하였다. 또한 Middle Pack과 최종 Pack 내부에는 냉각 공기의 순환을 극대화하는 유로를 구축하여 그림 4와 같이 구성하였다.
저압직류배전용 고압차단기는 정격전압 400[VDC], 정격전류 600[A], 프레임전류 200/600[A], 정격차단용량 50[kA]로 구성하여 적용하였으며, 기존 시스템과 달리 스프링 방식을 적용하여
차단기의 크기를 최적화하였다.
디지털 OCR(Over-Current Relay) 기반의 트립 기술을 도입해 단한시, 장한시, 순시 과부하 보호가 가능하다. 또한 사고 발생 시 이벤트
저장, 원격 제어, 간단한 정정치 설정 기능을 지원한다.
그림 4. 에너지저장시스템 Middle Pack 구성도
Fig. 4. ESS middle pack configuration
직류 디지털 전력량계는 직류 전압 및 전류 계측, 순·역방향 유효전력량 측정과 저장, 최대수요전력 분석, 데이터 기록 및 파라미터 보관, 시계 기능과
보정(Calibration) 기능을 포함하는 고성능 디지털 장치로, 유효전력량의 측정 정밀도는 ±1% 이내이다.
직류배전에 사용된 부하는 LED 조명, 컴퓨터, TV로 구성되었으며, 직류배전 전용 제품이 상용화되지 않아 기존 교류용 제품을 직류로 변환하여 적용하였다.
3. EMTP/ATPDraw를 이용한 직류배전 모델링 및 검증
본 논문에서는 실증 시스템에 구축된 시스템을 기반으로, EMTP/ATPDraw를 이용하여 양방향 AC/DC 컨버터, DC/DC 컨버터, 에너지저장시스템,
태양광 시스템(PV, BIPV), 부하를 모델링 하였으며, 각 모듈은 해당 장치의 전기적 특성과 제어 로직을 반영하여 구성되었으며, 실계통과의 정합성을
확보하기 위해 각 시스템의 사양을 기반으로 매개변수를 설정하였다[1].
3.1 양방향 AC/DC 컨버터
교류를 직류로 변환하기 위해 사용되는 양방향 AC/DC 컨버터는 3상 다이오드를 이용한 단순 정류기와 PWM(Pulse Width Modulation)
기반 컨버터 토폴로지를 사용하였다. 다이오드 정류기는 회로 구성이 간단하고 모델링이 쉬우며 대전력 전송에도 유리하지만, 출력 전압 제어가 불가능해
부하 변동 시 전압 강하가 발생하고 단방향 전력 흐름이라는 제약이 있다. 또한, AC/DC 컨버터의 직류 출력 전압제어는 PI 제어기를 사용하였다.
따라서, 본 논문에서는 이러한 한계를 극복하기 위해 반도체 스위칭 소자와 인덕터를 적용해 Buck 및 Boost 동작이 가능한 양방향 3상 PWM
컨버터를 모델링하여 직류배전시스템에 적용하였다[4].
그림 5. 양방향 AC/DC PWM 컨버터
Fig. 5. Diagram of bi-directional AC/DC PWM Converter
3상 AC/DC PWM 컨버터는 PWM 변조 기법을 활용해 전류의 크기와 위상을 제어하고, 전류 파형을 정현파에 가깝게 만들어 고조파를 최소화하며
역률을 제어할 수 있다. 다이오드 기반 정류기와 달리 전력의 양방향 제어가 가능하지만, 전력용 반도체에서 고속 스위칭이 요구되며 스위칭 시 발생하는
고조파를 억제하기 위해 필터 설계가 필요하다. 또한 Boost 모드에서는 직류 전압 제어 시 각 상의 피크 전압을 반드시 고려해야 한다.
다양한 부하가 연결된 배전 시스템에서는 부하 변동이 발생하더라도 직류전압이 설정된 범위 내에서 유지되어야 하며, 이를 위해 컨버터의 정상적인 동작을
보장할 수 있도록 입출력 전류 및 전압을 정밀하게 제어해야 한다.
그림 6. 양방향 AC/DC 컨버터 입력 및 출력 파형
Fig. 6. Input and output graphs of AC/DC Converter
AC/DC 컨버터의 입력전압은 교류 380[Vrms] 이고, 출력전압은 직류 700[VDC]이며, 회생 동작 시에는 직류 700[VDC]를 입력으로 받아 3상 교류 380[Vrms]을 계통으로 회생하도록 모델링하였다. 전력번환기의 정격 용량은 60[kVA]이며, 스위칭 주파수는 10[kHz]로 구성하였다.
스위칭 패턴을 사용해 교류 380[Vrms] 전압을 700[VDC] 직류 전압으로 변환하였으며, 그 결과 출력 파형은 그림 6과 같으며, 0.05[s] 이후 DC-Link 전압이 목표값인 700[VDC]로 안정화되는 것을 확인할 수 있다.
3.2 양방향 DC/DC 컨버터
다음 그림 7은 AC/DC PWM 컨버터와 연계되는 양방향 DC/DC 컨버터의 회로도이다.
그림 7. DC/DC 컨버터
Fig. 7. Diagram of DC/DC Converter
양방향 DC/DC 컨버터의 정격 용량은 50[kW]이며, 3상 AC/DC PWM 컨버터에서 승압된 전압을 입력으로 받아 DC-link 전압에 맞게
강압할 수 있다. 또한 DC-Link 전압인 380[VDC]를 입력으로 받아 700[VDC]로 승압해 계통으로 인가하는 양방향 운전이 가능하도록 구성하였며, 회로를 병렬로 구성하여 인덕터 전류를 약 33% 줄였으며, 이를 통해 고주파 운전이
가능하여 시스템 응답성이 향상되고 손실을 감소하였다.
3.2.1 Buck mode
양방향 DC/DC 컨버터는 직류배전 계통에서 각 층 부하로 전력을 공급할 때 Buck 모드로 동작하며, 이때 스위치 S1, S2, S3를 메인 스위치로
설정하여 duty ratio를 결정하고, 스위치 S4, S5, S6를 보조 스위치로 제어함으로써 메인 스위치가 Turn-off될 경우 보조 스위치를
통한 환류가 가능하도록 구성하였다.
3.2.2 Boost mode
DC-link를 통해 계통으로 전력을 회생할 경우 양방향 DC/DC 컨버터는 Boost mode로 동작하며, 이때 하단 스위치 S4, S5, S6를
메인 스위치로 설정하여 duty ratio를 제어하고 상단 스위치 S1, S2, S3를 보조 스위치로 동작시키며, 보조 스위치의 제어 여부에 따라
Turn-off 시 전류 경로가 변화하는 점은 Buck mode와 동일하다[5].
양방향 DC/DC 컨버터는 Buck과 Boost 두 mode로 동작하므로 각 모드의 특성을 비교해야 한다. 동일한 출력 전류 조건을 기준으로 할 경우,
Buck mode에서 필요한 인덕턴스 값이 Boost mode보다 크다. 또한 연속전류 모드와 불연속전류 모드 설계 시에도 연속 모드에서 상대적으로
큰 인덕턴스 값이 필요하다.
본 논문에서 다룬 50[kW] 양방향 DC/DC 컨버터의 각 상 인덕터 전류 리플은 50[A]로 설정하였으며, 100[%] 부하 운전 시 출력 전류는
131.6[A], 인덕터 전류는 43.9[A]이다. 따라서 연속 전류 모드의 Buck 모드 설계값인 699.2[μH]를 기준으로 하여 각 상 인덕턴스
값을 700[μH]로 설정하였다.
그림 8은 모델링 된 양방향 DC/DC 컨버터의 전압 파형을 나타낸 그래프이다. 초기 0.06[s] 구간 동안 양방향 AC/DC PWM 컨버터의 DC-Link
전압을 700[VDC]까지 충전한 후, 0.1[s]까지 PWM 스위칭을 통해 전압을 제어하며, 이후 안정화가 완료되면 양방향 DC/DC 컨버터를 연계하여 설정된 전압을
충전하고 직류 배전에 설정된 380[VDC] 전압을 정밀하게 제어하여 출력하는 것을 확인할 수 있다.
그림 8. 양방향 DC/DC 컨버터 전압 파형
Fig. 8. Voltage graph of the bi-directional DC/DC converter
3.3 에너지저장시스템
에너지저장시스템 모듈은 리튬인산철(LiFePO₄) 기반의 에너지저장시스템을 단순화된 동등회로로 모델링하였다. 기본 구성은 전압원과 내부 저항, SOC(State
of Charge) 계산 로직을 포함하며, 시간에 따른 충·방전 전류 흐름을 기반으로 SOC를 계산하고 출력 전압을 조절한다. 에너지저장시스템은 DC/DC
컨버터를 통해 DC link와 연결되어 있으며, SOC 조건에 따른 전류 제한 기능이 내장되어 있다. EMTP/ATPDraw 기반으로 구현된 에너지저장시스템
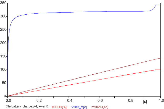
모델의 동작 특성을 확인하기 위해 초기 SOC를 100[%]로 설정한 뒤 부하를 연결하여 150[A]를 방전하는 상황을 시뮬레이션하였다.
그림 9에서는 방전 조건에서 에너지저장시스템의 전압, SOC, 에너지저장시스템 사용량 변화를 파형으로 내었으며, 지수감쇠 영역에서는 SOC가 100[%]일
때 전압이 약 311[VDC]에 도달할 때까지 지수적으로 낮아지며, 정격 영역에서는 실제 전압이 288[VDC]까지 감소하는 특성을 보여준다.
그림 10은 에너지저장시스템 충전 시 동작 전압, SOC 및 에너지저장시스템 사용량의 결과 파형을 보여준다. 정격 전압 이전 구간에서는 에너지저장시스템 전압이
급격히 상승하며, 정격 영역에서는 실제 동작 전압을 나타내어 331[VDC]까지 점진적으로 증가하는 것을 확인할 수 있다. 이어서 지수 영역에서는 에너지저장시스템 전압이 331[VDC]에서 SOC 100[%]에 해당하는 336[VDC]까지 지수적으로 상승하는 특성을 보인다.
DC/DC 컨버터는 에너지저장시스템과 연결되어 있으며, 충·방전을 지원하는 양방향 구조로 설계하였다. 특히 방전 시 전압 강하가 발생해도 365[VDC]의 직류 전압을 안정적으로 출력할 수 있도록 설계하였으며, 충전 시에는 CC(Constant Current)-CV(constant voltage)
제어를 적용해 일정 전류 및 전압으로 충전이 가능하도록 구성하였다. 에너지저장시스템 SOC 정보를 활용하여 SOC가 70[%] 이하일 때는 CC 제어를
통해 150[ADC] 전류로 빠르게 충전하도록 설정하였다. 이후 SOC가 70[%]를 넘어서는 시점부터는 충전 전압을 320[VDC]로 고정하여 완전 충전이 가능하도록 구성하였다. 그림 11은 방전 모드에서 전압과 전류의 출력 파형을 보여준다. DC/DC 컨버터가 에너지저장시스템 전압을 365[VDC]까지 승압하며, DC-Link 전압이 안정화되는 0.06[s] 시점부터 부하에 전력이 공급된다. 시간이 경과함에 따라 에너지저장시스템 SOC[%]와
사용 가능 용량(BattQ[Ah])이 점진적으로 감소하고, SOC가 5[%]에 도달하는 0.85[s]에서 전원 공급이 중단된다.
그림 9. 에너지저장시스템 모델 방전 특성 곡선
Fig. 9. Discharge characteristic curve of the battery model
그림 10. 에너지저장시스템의 충전 특성 곡선
Fig. 10. Charge characteristic curve of ESS
그림 12는 에너지저장시스템 충전 시 CC 및 CV mode의 동작 특성을 보여주는 파형이다. 0.15[s] 시점부터 충전이 시작되며, 초기 단계에서 DC/DC
컨버터는 CC mode로 운전하여 150[A]의 일정 전류로 에너지저장시스템을 충전한다. SOC가 70[%]에 도달하는 0.84[s] 이후에는 CV
mode로 전환되어 320[VDC]의 일정 전압을 유지하며 충전이 계속된다. 충전 말기인 SOC 95[%] 시점인 1.1[s]에서는 과충전 방지를 위해 충전을 멈추는 것을 확인할
수 있다.
그림 11. 에너지저장시스템 출력 파형(방전 모드)
Fig. 11. Output graph of the ESS(discharging mode)
그림 12. 에너지저장시스템 출력 파형(충전 모드)
Fig. 12. Output graph of the ESS(charging mode)
3.4 태양광 시스템
태양광 시스템은 실측 일사량 데이터를 기반으로 하는 PV 셀 출력 모델과, 이에 연계된 MPPT(Maximum Power Point Tracking)
기능이 내장된 DC/DC 부스트 컨버터로 구성된다. 출력 전력은 시간대별 일사량에 따라 변화하며, PV 전압 및 전류 특성은 단일 다이오드 모델(Single-Diode
Model)을 기반으로 구현되었다. DC/DC 컨버터는 부하 전력 수요에 맞춰 동작하며, 잉여 전력은 에너지저장시스템으로 전환 저장된다. 시뮬레이션에서는
급변하는 일사 조건에서도 안정적인 출력 유지와 MPPT의 응답성을 분석하였다.
본 논문에서는 태양광 시스템을 설계하기 위해 확대 등가회로를 적용하였다. 직류 배전 구성요소 중 태양광 시스템은 Roof-Top PV와 BIPV두
유형으로 모델링을 하였으며, 태양광 시스템은 EMTP/ATPDraw의 MODELS 기능을 활용하여 모델링을 하였다.
그림 13과 14에서 제시된 I-V curve를 통해 조사량 변화가 전류에 미치는 영향을 알 수 있으며, 조사량과 전류는 비례 관계를 가진다는 것을 확인할 수 있다.
그림 13. 조사량 변화에 따른 I-V curve(Roof-Top PV)
Fig. 13. I-V curve under different irradiance levels(Roof-Top PV)
그림 14. 조사량 변화에 따른 P-V curve(Roof-Top PV)
Fig. 14. P-V curve under different irradiance levels(Roof-Top PV)
그림 15. 온도에 따른 I-V curve(Roof-Top PV)
Fig. 15. I-V curve under different temperature conditions
태양광 시스템의 전기적 특성은 온도의 변화에 따라 그 특성이 달려지며, 그림 15 및 16은 이러한 특성을 나타낸 그래프이다. 모듈의 온도가 상승할수록 전류는 미세하게 증가하지만 전압은 급격히 감소하는 것을 확인할 수 있다.
EMTP/ATPDraw 의MODELS를 이용하여 BIPV 모듈을 모델링하여 조사량 변화를 적용한 시뮬레이션을 수행하였으며, 그림 17과 18에서 그 특성을 확인할 수 있다.
그림 16. 온도에 따른 P-V curve(Roof-Top PV)
Fig. 16. P-V curve under different temperature conditions
그림 17. 조사량 변화에 따른 I-V curve(BIPV)
Fig. 17. I-V curve under different irradiance levels(BIPV)
그림 18. 조사량 변화에 따른 P-V curve(BIPV)
Fig. 18. P-V curve under different irradiance levels(BIPV)
그림 19 및 20은 온도 변화가 모듈의 전기적 특성에 미치는 영향을 보여준다.
그림 19. 온도에 따른 I-V curve(BIPV)
Fig. 19. I-V curve under different temperature conditions
그림 20. 온도에 따른 P-V curve(BIPV)
Fig. 20. P-V curve under different temperature conditions
3.5 부하
본 논문에서 부하는 실제 3개 층의 부하를 기반으로 설계되었으며, 각 층은 정전압 부하 형태로 일정 전력 소비 특성을 갖도록 구성과 시나리오별로 ON/OFF
조건을 설정할 수 있게 하여 다양한 운영 상황을 고려하였으며, 부하 전류는 DC-link 전압에 적용될 수 있도록 구현하였다.
부하의 종류는 전등, PC, TV로 구성하였으며, 부하의 전력 특성을 고려하여 모델링을 하였다. 부하별 세부 용량과 수량 정보는 표 1과 같다.
표 1. 적용된 부하 수량과 용량
Table 1. Quantity and capacity of applied loads
|
종류
|
용량[W/1ea]
|
수량[ea]
|
전체 용량
|
|
1층
|
2층
|
3층
|
|
전등
|
28
|
500
|
500
|
500
|
24[kW]
|
|
PC
|
140
|
14
|
38
|
13
|
9.1[kW]
|
|
TV
|
80
|
8
|
14
|
13
|
2.8[kW]
|
시뮬레이션에서 층별 부하는 전등, PC, TV로 구성되었으며, 거리에 따라 긍장이 증가하도록 모델링하였다.
각 층의 전등 부하는 500[EA]로 설정하였으며, 개별 전등을 모두 단독 부하로 모델링할 경우 EMTP 내 소자와 노드 수가 과도하게 증가할 수
있다. 이를 방지하기 위해 전등 부하는 간소화된 방식으로 모델링하였다.
4. 다양한 운전 조건에 따른 시뮬레이션 분석
4.1 Case study 1
Case study 1은 그림 21과 같이 AC/DC 컨버터에서 부하로 직류 전력을 공급하는 case이며, 해당 case에서 AC/DC 컨버터는 계통 전력을 DC-link로 공급하기
위해 3상 양방향 AC/DC PWM 컨버터를 사용하여 계통의 380[Vrms]를 700[VDC]로 변환한다. 이후 양방향 DC/DC 컨버터를 통해 DC-link 전압 700[VDC]를 배전용 전압 385[VDC]로 강압하여 부하에 공급한다.
그림 21. Case Study 1
Fig. 21. Case study 1
부하는 0.5[s], 1.0[s], 1.5[s] 시점에 각각 1층, 2층, 3층 순으로 투입되며, 시뮬레이션 결과 파형은 그림 22와 23과 같다.
그림 22의 출력 전압 파형에서 AC/DC 컨버터는 초기 시점부터 동작하여 DC-Link 전압을 700[VDC]로 안정적으로 유지하며, 0.1[s]에서 DC/DC 컨버터가 동작하여 컨버터 1차측 전압 700[VDC]를 강압해 2차측 DC-Link 전압을 385[VDC]로 유지한다. 이후 각 층 부하가 순차적으로 투입될 때마다 DC-Link 전압은 순간적으로 소폭 하락하나, AC/DC 컨버터 제어에 의해 다시 700[VDC]으로 복원되는 것을 확인할 수 있다.
그림 23은 출력 전류 파형에서는 각 층 부하 투입 시점에 따라 컨버터 출력 전류가 단계적으로 증가하는 것을 나타낸 그래프이다. 시뮬레이션 결과, 각 층의
분기회로에서 평균 383[VDC]의 전압이 인가되는 것으로 확인 할수 있다. 이는 정형화된 직류 전압을 직접 인가하는 경우와 비교할 때, 기준 전압 대비 약 1[VDC]의 낮은 전압값을 나타내며, 부하 투입에 따른 전압 강하가 발생하는 것으로 해석 될 수 있다.
그림 22. Case study 1 출력 전압 파형
Fig. 22. Output voltage graph of case study 1
그림 23. Case study 1 출력 전류 파형
Fig. 23. Output current graph of case study 1
4.2 Case study 2
Case study 2는 그림 24와 같이 AC/DC 컨버터를 이용하여 에너지저장시스템을 충전함과 동시에 각 부하에 전력을 공급하는 case이다. AC/DC 컨버터는 계통 전력을 DC-link에
공급하기 위해 3상 양방향 AC/DC PWM 컨버터를 사용하여 계통의 380[Vrms] 전압을 700[VDC]로 변환한다. 이후, 양방향 DC/DC 컨버터를 통해 700[VDC] 전압을 배전 전압 380[VDC]로 강압하여 부하와 에너지저장시스템에 동시에 전력을 공급한다. 또한, 에너지저장시스템은 DC-link에 연계되어 있으며, CC-CV 기반 충전 제어
알고리즘을 적용하여 초기에는 150[A]의 CC mode로 충전한 뒤, 설정된 SOC에 도달하면 320[VDC]의 CV mode로 전환하여 충전이 이루어지도록 구성하였다.
그림 24. Case Study 2
Fig. 24. Case study 2
그림 25와 그림 26은 Case Study 2의 출력 파형을 나타낸 것으로, 0.15[s] 시점에서 에너지저장시스템의 충전이 시작되며, 이후 0.5[s] 시점에는 1층
부하, 0.6[s] 시점에는 2층 부하, 0.7[s] 시점에는 3층 부하에 순차적으로 전력이 공급된다.
부하가 순차적으로 투입됨에 따라, 계통 측 AC/DC 컨버터와 연결된 DC/DC 컨버터의 2차측 전류가 점진적으로 증가하는 것을 확인할 수 있다.
이는 부하 전력 수요가 커짐에 따라 컨버터의 출력이 자동으로 보상되는 동작 특성을 반영한 것이다.
그림 25의 A구간(0.7[s]~0.9[s])은 각 층 부하의 전압을 나타낸 부분으로 각 층의 전압이 일정한 것을 확인하였다.
그림 25. Case study 3 출력 전압 파형
Fig. 25. Output voltage graph of case study 3
그림 26. Case study 2 출력 전류 파형
Fig. 26. Output current graph of case study 2
4.3 Case study 3
Case Study 3은 그림 27과 같이 에너지저장시스템을 구동시켜 부하에 전력을 공급하는 case이며, AC 계통에서 사고, 고장 또는 계통 유지보수 등의 이유로 전력 공급이 원활하지
않을 경우, 에너지시스템이 DC-link에 연계되어 각 층 부하에 전력을 공급한다. 이때, 에너지저장시스템은 방전 모드로 동작하며, 내부 출력 전압을
365[VDC]로 변환하여 DC-link에 인가함으로써 안정적인 전력을 공급할 수 있다.
그림 28은 에너지저장시스템 단독 운전 시 에너지저장시스템과 연계된 양방향 DC/DC 컨버터의 동작 특성을 나타낸다. 컨버터의 2차측 전압은 365[VDC]로 출력되며, 0.2[s] 시점에서 DC-link에 연계된다. 이후 약 0.1[s]의 시간 지연 후 에너지저장시스템은 각 층의 부하에 전력을 공급하기
시작한다.
그림 28의 A구간(0.7[s]~09[s])은 각 층 부하의 전압을 나타낸 부분으로 각 층의 전압이 일정한 것을 확인하였다.
그림 27. Case Study 3
Fig. 27. Case Study 3
또한, 에너지저장시스템의 안정적 운전을 위해 분리 조건(SOC 기준)을 5[%]로 설정하였으며, 에너지저장시스템의 SOC가 해당 값에 도달하는 1.1[s]
시점에서 에너지저장시스템이 DC-link에서 분리된다. 이로 인해 전력 공급이 차단되는 과정을 그림 29에서 확인할 수 있다.
그림 28. Case study 3 출력 전압 파형
Fig. 28. Output voltage graph of case study 3
그림 29. Case study 3 출력 전류 파형
Fig. 29. Output current graph of case study 3
4.4 Case study 4
Case study 4는 그림 30과 같이 태양광 시스템이 동작하여 각 층의 부하에 전력을 공급하는 방식이다.
태양광 시스템에 연계된 양방향 DC/DC 컨버터는 MPPT 알고리즘을 적용하여 태양광 모듈의 출력 전력을 최적화하도록 설계하였으며, 컨버터의 출력
전압을 385[VDC]로 유지하여 각 층의 부하에 전력을 공급할 수 있도록 구성하였다.
Case study 4는 태양광 시스템에서 생산된 전력을 활용하여 부하에 전력을 공급하는 동작 모드를 분석한 사례이다. 태양광 발전 전력의 출력 특성과
부하 전력 요구 조건을 고려하여, 시험은 다음 세 가지 시나리오로 구분하여 수행하였다.
1. 시나리오 1: 태양광 전력을 1층 부하에만 공급
2. 시나리오 2: 태양광 전력을 1층과 2층 부하에 공급
3. 시나리오 3: 태양광 전력을 전 층 부하에 모두 공급
이와 같은 세부 시나리오를 통해 태양광 발전량에 따른 층별 부하 전력 분배 특성과 시스템의 안정성을 분석하였다.
그림 30. Case Study 4
Fig. 30. Case study 4
Case study 4에서는 Roof-Top PV와 BIPV 두 종류의 태양광 모듈을 대상으로 동일한 조사량과 온도 조건을 적용하였으며, 각 태양광
시스템에 연계된 DC/DC 컨버터는 MPPT 제어만을 수행하도록 설정하여, 외부 환경 변화에 따른 발전 성능을 비교할 수 있도록 하였다.
그림 31과 32는 태양광 시스템에서 생산된 전력을 1층 부하에만 공급한 경우의 시뮬레이션 결과를 나타낸다. 출력 전압과 출력 전류 그리고 출력 전력의 파형을 통해
MPPT 제어가 적용된 상황에서 태양광 시스템의 전력 변환 특성과 1층 부하 공급 시의 전력 분배 특성을 확인할 수 있다.
조사량의 증가로 각각의 출력 파형이 증가하는 경향을 확인할 수 있지만, Roof-Top PV와 BIPV에 연계된 컨버터의 전압이 385[VDC]에 도래 시 MPPT 제어기 상보간에 간섭이 발생하여 MPPT에 불평형이 발생하여 전압 리플의 발생과 출력 전력의 불안정을 확인할 수 있다.
그림 33은 태양광 시스템 동작 시 부하 측 전압, 전류 및 전력 파형을 나타낸 것으로, 전체적인 파형이 PV 2차측 DC-Link 전압 특성과 유사한 형태를
보인다. 특히, 1층 부하 용량은 약 16.6[kW]로, 해당 구간은 A 구간에 해당함을 확인할 수 있다.
한편, 그림 34는 A 구간의 전압 파형을 확대하여 나타낸 것으로, MPPT 제어기의 불안정성으로 인해 출력 전압에 리플이 발생하는 현상을 명확히 관찰할 수 있다.
이는 Roof-Top PV와 BIPV에 연계된 MPPT 제어기 간 상호간섭으로 인해, 두 시스템이 전압 제어가 동기화되지 못해 발생하는 것으로 분석된다.
그림 31. PV 측 출력 전압, 전류 파형(1층 부하 단독 투입)
Fig. 31. PV-side output voltage and current graph(1st floor load only)
그림 32. PV 측 출력 전력 파형
Fig. 32. PV-side output power graph
그래프를 통해, 태양광 시스템을 활용한 전력 제어 시 태양광 시스템에서 생산되는 전력이 1층 부하의 요구 용량(약 16.6[kW])을 상회함을 확인할
수 있다. 따라서, 태양광 시스템만을 이용한 단독 운전 모드에서도 1층 부하에 대해 안정적인 전력 공급이 가능함을 알 수 있다. 이는 태양광 발전
전력이 부하 요구 전력을 초과하므로, 시스템 내 전압 변동률이 최소화되고 출력 전압이 385[VDC] 부근에서 안정적으로 유지되는 것에 확인할 수 있다.
그림 35와 36은 태양광 시스템을 이용하여 각 층 부하(1층, 2층, 3층)에 전력을 공급하는 경우의 출력 전압, 전류, 전력 파형을 나타낸 것이다. 본 시뮬레이션에서는
Roof-Top PV와 BIPV 모듈에서 발생하는 전력을 합산하여 DC-link에 공급하고, 각 층 부하의 요구 전력에 따라 MPPT 기반 전력 분배를
수행하였다.
시뮬레이션 결과, 태양광 시스템의 DC-Link 출력 전압은 목표값인 385[VDC]를 유지되었으며, 출력 전류는 부하 투입 시점에 따라 단계적으로 증가하는 특성을 보였다. 특히, 0.5[s]에서 1층 부하, 0.6[s]에서 2층
부하, 0.7[s]에서 3층 부하가 순차적으로 투입됨에 따라 전체 출력 전류가 계단식으로 상승하는 양상으로 나타난다. 이 과정에서 태양광 시스템의
총 출력 전력은 부하 전력 수요에 비례하여 점진적으로 증가하였으며, 전력공급의 안정성을 확보할 수 있음을 확인하였다.
그러나 시뮬레이션 결과, 다층 부하에 전력을 공급하는 과정에서 MPPT 제어기 간 상호 간섭이 발생하였다. 특히 Roof-Top PV와 BIPV가
동일한 조사량 조건에서 각각 독립적인 MPPT 제어를 수행하기 때문에, 순간적으로 제어 불균형이 발생하여 출력 전압에서 ±2.0[VDC] 이내의 전압 리플이 관찰되었다. 이러한 리플 현상은 그림 33 및 그림 34의 전압 파형 확대 구간에서도 명확히 확인되며, 이는 다중 MPPT 제어 구조의 특성상 불가피하게 발생하는 문제로 분석된다.
그림 33. 부하 측 전압, 전류, 전력 파형
Fig. 33. Load-side voltage, current and power graphs
그림 34. A 구간 전압 파형
Fig. 34. Voltage graph in section A
그림 35와 36의 시뮬레이션 결과, 태양광 시스템은 조사량의 증가에 따라 출력 전압, 전류 및 전력이 비례적으로 증가하는 경향을 나타낸다. 그러나 연결된 DC/DC
컨버터의 DC-Link 전압은 설정값인 385[VDC]에 도달하지 못하며, 이로 인해 MPPT 제어기는 DC-Link 전압을 상승시키기 위해 지속적으로 지령치를 생성하게 된다. 이러한 제어 방식은 MPPT
알고리즘 간 상보 간섭을 최소화하는 데 기여하며, 그 결과 각각의 태양광 전력 파형과 MPPT 추종 파형이 매우 유사한 형태를 나타내는 것을 확인할
수 있다.
그림 36과 37의 시뮬레이션 결과, 태양광 시스템은 조사량의 증가에 따라 출력 전압, 전류 및 전력이 비례적으로 증가하는 경향을 나타낸다. 그러나 연결된 DC/DC
컨버터의 DC-Link 전압은 설정값인 385[VDC]에 도달하지 못하며, 이로 인해 MPPT 제어기는 DC-Link 전압을 상승시키기 위해 지속적으로 지령치를 생성하게 된다. 이러한 제어 방식은 MPPT
알고리즘 간 상보 간섭을 최소화하는 데 기여하며, 그 결과 각각의 태양광 전력 파형과 MPPT 추종 파형이 매우 유사한 형태를 나타내는 것을 확인할
수 있다.
그림 35. PV 측 출력 전압, 전류 파형(1층, 2층 및 3층 연계)
Fig. 35. PV-side output voltage and current graph(all floor connection)
그림 36. PV 측 출력 전력 파형(1층, 2층 및 3층 연계)
Fig. 36. PV-side output power graph(all floor connection)
4.5 Case study 5
Case Study 5에서는 교류 계통의 사고 또는 AC/DC 컨버터의 고장 발생 시 보조 에너지저장시스템과 주 에너지저장시스템을 활용하여 직류 부하에
무정전 전력을 공급하는 시나리오로 구성되었으며, 그림 37과 같다. 초기 단계에서 보조 에너지저장시스템이 DC-Link 전압을 365[VDC]로 안정화시키며, 이후 주 에너지저장시스템이 방전 모드로 전환되어 DC-link에 전력을 공급한다. 이를 통해 계통 이상 시에도 안정적인 전력 공급을
보장할 수 있으며, DC-link 전압 변동률을 최소화하여 부하 측 전력 품질을 확보하였다.
본 시스템에서 AC/DC 모듈의 보조 에너지저장시스템은 정상 운전 시 계통과 분리되어 있으며, 고장 발생 시 주 에너지저장시스템 투입 전까지의 짧은
구간에 한해 DC-link에 연결된다. 이에 따라 보조 에너지저장시스템의 용량은 주 에너지저장시스템의 1/10인 14[Ah]로 구성하였다.
시뮬레이션 절차는 다음과 같이 수행하였다.
우선 0.0[s] ~ 0.1[s] 구간에서는 AC/DC 컨버터가 동작하여 DC-Link 전압을 초기 충전하고, 0.1[s] 이후부터는 DC/DC 컨버터(Main
SW: ON)가 운전되며 DC-link 전압을 385[VDC]로 유지한다. 동시에 1층, 2층, 3층의 부하가 순차적으로 투입되며, 0.3[s] 이후에는 AC/DC 컨버터 1차측(Fault SW: OFF)을
개방하여 계통 전원을 차단한다.
이후 DC/DC 컨버터의 출력 전압이 365[VDC] 이하로 하락할 경우 비상 제어 절차가 시작된다.
먼저 고장 상태 표시등(Fault lamp)이 점등되고, 보조 에너지저장시스템(Aux.Batt SW: ON)가 투입된다. 이어서 AC/DC 모듈 DC/DC
컨버터의 2차측(Main SW: OFF)을 차단하고, 주 에너지저장시스템(M.Batt SW: ON)의 DC/DC 컨버터 운전을 지령하여 전원 공급을
준비한다. 마지막으로 주 에너지저장시스템 DC/DC 컨버터의 DC-Link 전압이 365[VDC]로 안정화되면, 전원 공급 모드를 BattConv SW: ON으로 전환하고 보조 에너지저장시스템(Aux.Batt SW: OFF)는 차단된다.
그림 37. Case Study 5
Fig. 37. Case study 5
위에서 제시한 모의시험 절차에 따라 무정전 전원 공급이 가능하도록 각 모듈의 제어 로직을 EMTP/ATPDraw의 MODELS 기능을 활용하여 설계하였다.
그림 38은 모의시험 수행 시 각 모듈의 전압 파형을 나타내며, 그림 39는 각 스위치(Main SW, Fault SW, Aux.Batt SW, M.Batt SW, BattConv SW)의 ON/OFF 상태 변화를 시간
축에 따라 시각적으로 표현한 것이다. 이를 통해, AC/DC 컨버터, 보조 에너지저장시스템, 메인 에너지저장시스템, DC/DC 컨버터 간의 상호 연계
동작을 검증할 수 있었으며, 비상 상황에서도 무정전 전력 공급이 가능함을 확인하였다.
앞서 제시한 모의시험 절차에 따라 시스템은 t=0.3[s]까지 정상적으로 동작한다. t=0.3[s]시점에서 고장이 발생하면, AC/DC 컨버터 2차측
DC-Link 전압은 전원 공급 중단으로 인해 700 [VDC]에서 점진적으로 감소한다. 이후 t=0.33[s] 시점에서는 DC/DC 컨버터 2차측 DC-Link 전압이 385[VDC]에서 365[VDC]로 저하되며, 이와 동시에 고장 상태 표시등이 점등되고 보조 에너지저장시스템(Aux. Batt)이 자동으로 투입된다. 동시에 메인 에너지저장시스템은
방전 지령이 전달되어 DC/DC 컨버터와 연결되며, 컨버터는 주 에너지저장시스템의 전압을 365[VDC]로 승압하여 안정적인 DC-Link 전압을 유지한다. 이후 t=0.36[s] 시점에서 DC-Link 전압이 완전히 안정화되면 에너지저장시스템 컨버터
2차측 스위치(BattConv SW)가 투입되어 메인 에너지저장시스템을 통한 전력 공급이 시작된다. 이 시점에서 보조 에너지저장시스템은 시스템에서
자동으로 분리되며, 보조 전원에서 주 전원으로의 무정전 전환이 완료된다.
그림 38. Case study 5 출력 전압 파형
Fig. 38. Output voltage graph of case study 5
그림 39. 모듈별 스위치 ON/OFF 상태
Fig. 39. Module-wise switch On/Off states
그림 40. 주 에너지저장시스템 및 보조 에너지저장시스템 SOC, 에너지저장시스템 사용 가능 용량
Fig. 40. SOC and available battery capacity of main and Aux. batteries
그림 40은 보조 에너지저장시스템과 메인 에너지저장시스템의 SOC 및 사용 가능 용량(Ah) 변화를 나타낸 파형이다. 모의시험 결과, 각 에너지저장시스템의
투입 시점에 따라 SOC가 변동되는 양상을 확인할 수 있다. 특히, 용량이 상대적으로 작은 보조 에너지저자장시스템 14[Ah]의 경우, 방전 구간에서
SOC가 단시간 내 급격히 감소하는 특성이 관측되었다. 반면, 메인 에너지저장시스템은 140[Ah]의 충분한 용량을 보유하고 있어 SOC 변화가 완만하게
나타났으며, 장시간 안정적인 전력 공급이 가능한 것을 확인할 수 있다.
그림 41은 부하 측 출력 전압 및 전류 파형을 나타낸 것이다. 0.3[s] 이전 구간에서는 각 층별 부하 전압 파형이 Case study 1과 동일하게 유지되며,
메인 에너지저장시스템이 동작한 이후에는 각 층별 부하 전압 파형이 Case study 3과 유사한 특성을 보인다.
그림 41. 부하 출력 전압 및 전류 파형
Fig. 41. Load-side voltage and current graphs
5. 결 론
본 논문에서는 실제 건물 실증 사이트를 기반으로, 직류배전 시스템의 계통 구조를 설계와 시공하였으며, 전력계통 해석 프로그램인 EMTP/ATPDraw를
이용하여 시뮬레이션 모델에 연계함으로써 가상의 24시간 운영 조건을 2.4초의 시뮬레이션 시간으로 가정하여 효율 분석을 수행하였다. 본 시뮬레이션은
부하 조건, 태양광 발전량, 에너지저장시스템의 충·방전 상태를 복합적으로 고려하였으며, 다양한 운전 시나리오를 설정하여 분석하였다.
분석 결과, 모든 시나리오에서 직류배전 시스템은 교류배전 시스템 대비 높은 평균 효율을 나타냈으며, 특히 전력 변환기 손실 감소, 배선 손실 절감,
변환 횟수 최소화 등의 구조적 이점이 확인되었다.
IPMVP Option B 방식을 통해 산정된 최종 에너지 절감률은 다음 식 (1)과 같다[7].
IPMVP Option B는 특정 설비 또는 회로의 에너지 소비 변화를 정밀 계측을 통해 산정하는 방법으로, 본 연구와 같이 교류와 직류 시스템 간
정략적 효율 비교가 필요한 경우 가장 적합한 방식이다. 이는 전력량계를 통합 직접 측정 기반으로 하며, 시스템 구성요소의 변경과 무관하게 실제 절감된
에너지를 검증 할 수 있는 장점이 있다.
또한, AC/DC 컨버터 고장 시, 보조 에너지저장시스템이 즉시 투입되고 일정 시간 이후 메인 에너지저장시스템이 연계되는 이중 전환 시나리오를 구성하여,
실제 사고 상황에서의 직류배전 시스템의 전압 안정성, 전력 연속성 확보 능력, 복원 특성 등을 상세히 분석하였다. 그 결과, 직류배전 시스템은 에너지저장시스템
용량을 고려하면 정전 시간 없이 안정적으로 부하에 전력을 공급할 수 있음을 입증하였다.
본 연구는 기존 교류 시스템과 저압 직류 시스템의 에너지 효율을 정량적으로 비교하기 위해, EMTP/ATPDraw 뮬레이션과 실증 데이터를 기반으로
IPMVP Option B 방식을 적용하였다. 효율 분석을 위해 교류시스템과 직류시스템의 손실은 각각 EAC, EDC로 정의하였으며, 변환손실, 배선손실,부하 구동손실을 포함하는 종합 손실값으로 산정하였다. 그 결과, 동일한 부하 조건에서 직류시스템의 총손실 EDC는 교류시스템의 총손실 EAC대비 5~10% 낮은 수준으로 나타났으며, 이는 직류 기반 전력 변환 단계의 축소, 역률 보상 불필요, 부하의 직류 특성에 따른 변환손실 최소화 등
구조적 이점을 반영한 결과임을 확인할 수 있었다.
또한, 단순히 직류시스템이 교류시스템보다 효율적이라는 일반적 결론을 재확인하는데 그치지 않고, 국내 실증 데이터를 기반으로 AC/DC 변환단 구성,
부하 특성, PV, ESS 연계 조건에 따른 세부 손실 모델을 제시함으로써 산업 현장에서 직접 활용 가능한 정량적 기준을 제시하였다. 또한 IPMVP
Option B 기준에 따라 검증된 실측 기반 절감률은 향후 저압직류배전 기반 건물, 데이터센터, 마이크로그리드 설계 시 객관적 평가 지표로 활용될
수 있을 것으로 기대된다.
References
K. W. Park, 2023, A Study on the Demonstration and Efficiency Analysis of New and
Renewable Energy Linked Low Voltage direct Current Distribution System

D. Nilsson, 2005, DC Distribution System

2005, Low voltage electrical installations-Part 1 : Fundamental principles, assessment
of general characteristics, definitions

J. Zhang, J.-S. Lai, W. Yu, 2008, Bidirectional DC-DC Converter Modeling and Unified
Controller with Digital Implementation, pp. 1747-1753

S. L. Sanjuan, 2010, Voltage Oriented Control of Three-Phase Boost Converters

S. Vazquez, S. M. Lukic, E. Galvan, L. G. Franquelo, J. M. Carrasco, 2010, Energy
Storage Systems for Transport and Grid Applications, IEEE Transactionson Industrial
Electronics, Vol. 57, No. 12, pp. 3881-3895

2002, International Performance Measurement & Verification Protocol – Concept and
Practices for Determining Energy Savings in New Construction

저자소개
He received the M.S. and Ph.D. degrees in electrical engineering from Sungkyunkwan
University in 2007 and 2021, respectively.
He worked in the capacity of a Principal Researcher at KD Power Co., Ltd. from 2007
to 2021.
He held the role of CTO at Next Square Inc. from 2021 to 2024.
Since September 2024, he has been an Assistant Professor with the Department of
Electric Vehicle Engineering at Doowon Technical University, Korea.
His research interests include power system analysis, LVDC, smart grids, power system
protection.